Our office is affiliated with Baerz & Co Luxury Homes, a joint-venture of selected, privately owned boutique luxury home offices in 20 countries around the Mediterranean, the Alps, Mexico and Dubai. For more information about these properties, please contact our office.

AMSTERDAM, NH
Peter Martensstraat 121 - 1087 NA
Netherlands

Elisabeth Deckers profile image
Elisabeth Deckers
Personal Property Advisor
€1,495,011 k.k.
Living Area
206m2
Plot Size
115m2
Bedrooms
4

Description

Peter Martensstraat 121, Amsterdam

Call now to schedule a viewing or request a brochure for this bright, spacious and truly exceptional corner townhouse with mixed residential/office designation and panoramic views over the IJmeer and the Diemer Vijfhoek nature reserve.

* Living area: 229 m² (206+23 m²)
* Three spacious parking spaces directly beneath the property in the underground garage – unique in Amsterdam: two in a
private enclosed double garage (sold seperately euro 100.000,= k.k.) and a third for guests/clients;
all three with direct access to the house.
* Leasehold paid off until 2058; thereafter converted to perpetual leasehold with a fixed ground rent.
* Double entrances on the ground floor.
* Two bathrooms.
* Highly practical layout: a large living room and a spacious dining room/kitchen, an exceptionally generous master
bedroom and three spacious bedrooms/offices. In short, ideal for living and working under one roof.
* Three outdoor spaces: a beautiful patio, a spacious balcony and a large roof terrace.
* City garden with greenery surrounding the entire house for added privacy.
* Possibility to extend with an additional rooftop level (stairwell and connections already in place).
* Energy-efficient and sustainable (Energy Label A): underfloor heating, heat recovery ventilation system, HR++ glazing.
* Alarm system.
* Fully equipped with air conditioning.
* 14 solar panels.

Layout
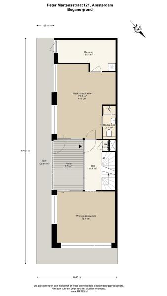
Ground Floor:
The front door leads through the pleasant, private patio garden into a hallway. This level features two generous rooms and the staircase to the first floor.

To the left of the hallway is a spacious office/bedroom of over 22 m² with its own shower and toilet. This room is also accessible via the second entrance, which leads to a large and bright storage room – ideal for storage or bicycles.

To the right of the hallway is an 18 m² office/bedroom.

First Floor – Living Level

The living floor is spacious and wonderfully bright thanks to the large windows on all sides. The living room (40 m²) has a playful and inviting layout and provides access to the generous terrace with abundant sunshine and wide, open views over the water and surrounding area – a delightful outdoor space at any time of day.

The dining room/kitchen (18 m²) forms the heart of the home. It features a modern design with striking yellow fronts, a 5-burner Falcon induction cooker (with two ovens and a separate grill), Miele dishwasher, Miele refrigerator and a Quooker boiling-water tap. There is ample space for a large dining table, perfect for dinner parties or family evenings.

Second Floor

Here you will find the master bedroom of nearly 23 m² (including built-in wardrobes), with large windows overlooking the lake. The second bedroom/office (18 m²) on this floor enjoys magnificent views over the water, the surroundings and the Diemer Vijfhoek.

There is also a pleasant and very bright bathroom with whirlpool bath (with views of the patio and the lake), walk-in shower and double washbasin. This floor also includes a separate toilet and a laundry room with washing machine/dryer connections.

Third Floor – Roof Terrace

A staircase from the second floor leads to the generous roof terrace (over 18 m²), one of the highlights of this property: spacious, sunny and offering unobstructed views over the water and the neighbourhood. The high glass balustrade (providing shelter from the wind) and the decking create a modern, open feel while maintaining plenty of privacy.

Basement and Parking

The basement level (22 m²) includes a large, high-ceilinged storage room and access to the parking garage. Directly behind the garage access door is the separate parking space for guests/clients. In addition, there is a private enclosed garage of nearly 28 m², spacious enough for two cars – an absolute rarity in Amsterdam.

The Homeowners’ Association (VvE) – applicable to the parking garage only – charges a modest monthly contribution of €99.03 for the three parking spaces in the secure, enclosed garage (also accessible by elevator).

Sustainability

This home is certainly sustainable. The owned solar panels were installed in 2019 and 2021 and generate approximately 3,000 kWh per year. This is ideal from both a comfort and cost perspective, particularly as the property is equipped with air conditioning that can also provide heating (Daikin system: 6 indoor units controlled by two outdoor units).

Combined with roof, wall and floor insulation and HR++ glazing, the overall energy performance is excellent.

Surroundings

This townhouse is located in IJburg-Zuid, an attractive neighbourhood characterised by abundant water and greenery (including the expansive Diemerpark and, just around the corner, Theo van Gogh Park), as well as excellent amenities.

Within walking distance you will find shops, public transport and schools. A particular highlight of this part of IJburg is the marina with its restaurants, coffee corners and, directly opposite, the beach – all just around the corner.

Major highways (A1, A9, A2 and the A10 ring road) are quickly accessible. Amsterdam city centre is easily reached by bicycle (30–45 minutes) or by tram (20 minutes to Central Station; Theo van Gogh Park stop, 8 minutes on foot). Buses and express services to Amsterdam Arena, Watergraafsmeer, Amstel Station, Weesp and ’t Gooi depart just a 1-minute walk away (Peter Martensstraat stop).

Highlights
- Unique live/work property
- Transition to perpetual leasehold completed
- Living area: 229 m² (206+23 m²)
- Highly practical layout
- Sustainable construction, air conditioning and solar panels
- Three private parking spaces
- Energy Label A
- Multiple outdoor spaces, including a generous roof terrace
- Stunning location with water views

Features

Solar panels
Alarm system
Air conditioning
Transfer of ownership
Asking Price
€ 1.495.011 k.k.
Status
beschikbaar
Acceptance
in overleg
Construction
Kind of house
Herenhuis
Building type
hoekwoning
Construction period
2010
Energy rating
A
Bedrooms
4
Bathrooms
2
Surface Areas And Volume
Living Area
206 m2
Other indoor space
23 m2
Exterior space attached to the buildinge
42 m2
External storage space
43 m2
Volume in cubic meters
883 m3
Plot Size
115 m2
Facilities
Alarminstallatie
Tv kabel
Buitenzonwering
Airconditioning
Schuifpui
Glasvezel kabel
Zonnepanelen
Balansventilatie
Aan water
In woonwijk
Vrij uitzicht
Aan vaarwater
Baerz & Co Property Brochure

Brochure

Videos

DECKLUSIVE gcv

Frans Standaertlei
2180 Mariaburg, Ekeren

elisabeth@baerzproperty.com

Information / Viewing request

Elisabeth Deckers profile image
Elisabeth Deckers
Personal Property Advisor

Buying a Luxury Property in Amsterdam

Amsterdam offers a cosmopolitan lifestyle defined by heritage, connectivity, and discreet luxury. Residents benefit from a robust international community, curated services, and vibrant culture. The city’s enduring appeal lies in its blend of history, sophistication, and progressive spirit.