Our office is affiliated with Baerz & Co Luxury Homes, a joint-venture of selected, privately owned boutique luxury home offices in 20 countries around the Mediterranean, the Alps, Mexico and Dubai. For more information about these properties, please contact our office.

AMSTERDAM
Schiemanstraat 10 - 1013 MJ
Netherlands

Stefano B. Djoemena profile image
Stefano B. Djoemena
Beëdigd register makelaar o.z.
€985,000 k.k.
Living Area
100m2
Plot Size
80m2
Bedrooms
2

Description

Stately Townhouse with a Bold Character – Spacious Ground-Floor Apartment with Canal Views

At the charming Schiemanstraat 10, a characterful townhouse is currently being constructed – a completely new build in the style of a New York warehouse. The façade is both classic and bold, featuring long, slender 40 cm bricks, symmetrical window arrangements and high-quality aluminium frames in RAL 6006. Inside, you'll enjoy modern comfort and sustainability, with an A+++ energy label, an all-electric system and triple glazing in ultra-slim profiles throughout.

The building consists of five floors and will be divided into a generous ground-floor and upper-level apartment. This ground-floor residence has its own private entrance, an impressive main level and a fully functional basement – together offering approximately 100 m² of living space. With its waterside location and large windows, the apartment is filled with natural light and offers a unique living experience.

The property is delivered in shell condition, with a sustainable technical foundation already in place: underfloor heating and cooling, an air-source heat pump, mechanical ventilation and solar panels. The interior finish can be fully customized to your own style. As inspiration, the buyer will receive two hours of complimentary interior design consultation from Co van der Horst.

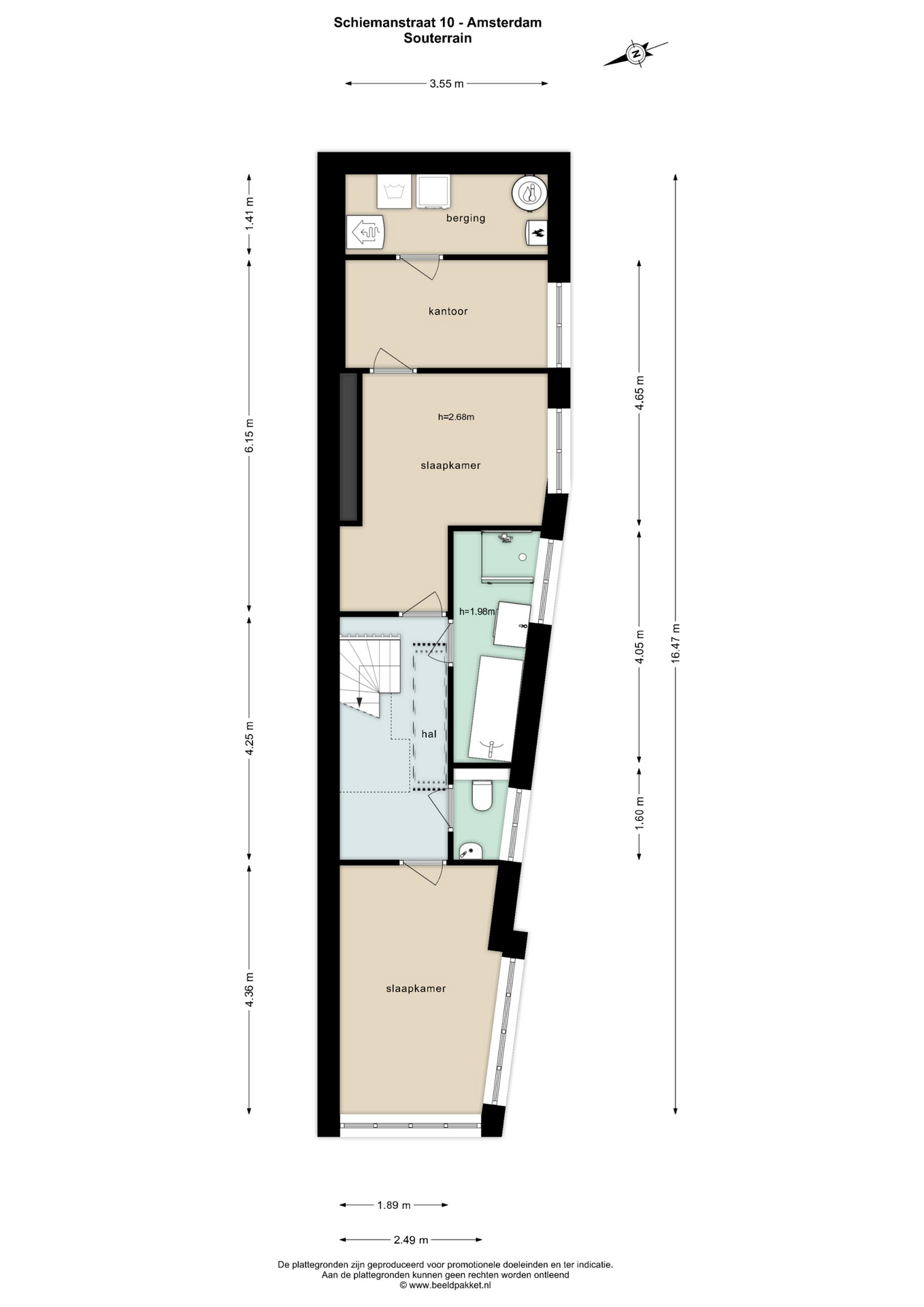
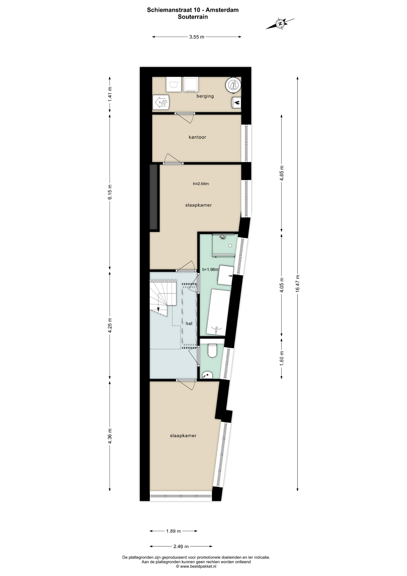
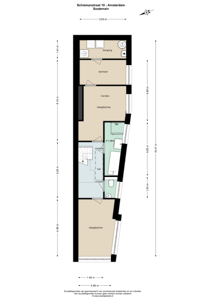
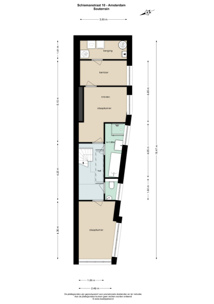
Layout

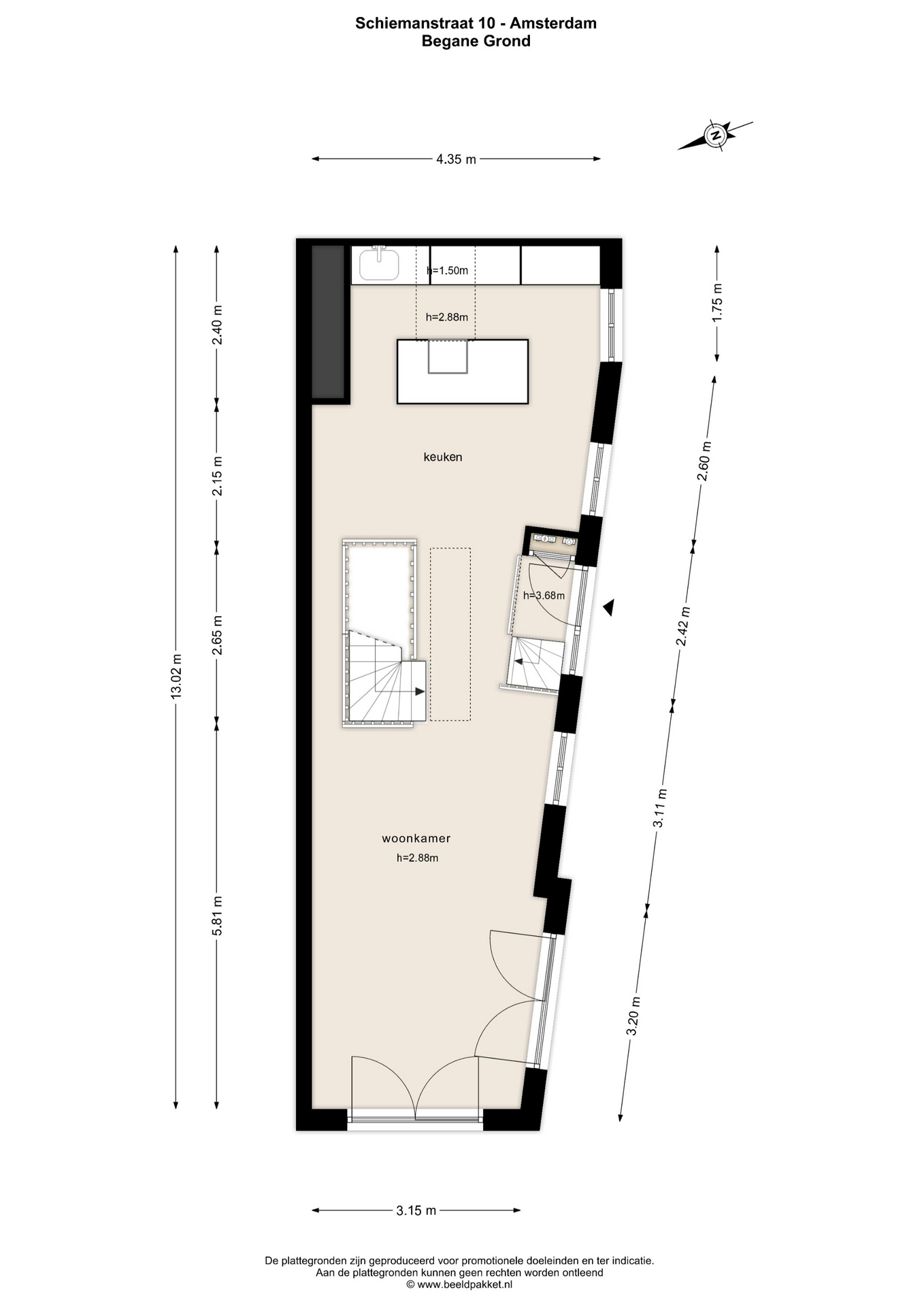
Ground Floor
The elevated ground floor features an impressive ceiling height of nearly 2.90 metres. Large windows and wide folding doors on the canal side bring in abundant light and create a seamless connection between indoors and out. A fold-down bench will be installed on the exterior wall – a smart way to enjoy the view and the sun even without a traditional outdoor space. This floor is ideal for a spacious living room and a generous open-plan kitchen.

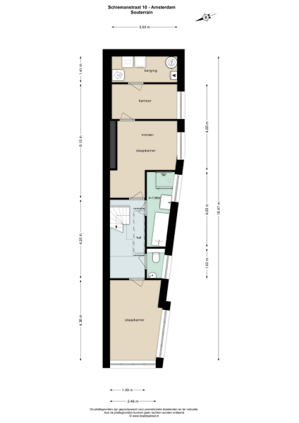
Basement
With a comfortable ceiling height of approximately 2.68 metres, the basement is a full-fledged living level. It includes two bedrooms, a separate toilet, a spacious bathroom, a study area and a utility room with connections for a washer and dryer. This level also houses the technical installations.

Surroundings
Schiemanstraat 10 is located on a quiet quay along the Westerkanaal, in the historic city centre of Amsterdam. Everything that makes the city special is within walking distance. Just a few minutes away are Haarlemmerplein, Haarlemmerstraat and Westerpark – all beloved spots thanks to their vibrant mix of culture, dining, markets and shops.

The location also boasts excellent connectivity. Amsterdam Central Station, the A10 ring road and public transport are all easily accessible.

Key Features
• Stately townhouse in warehouse style with only two residences
• Approx. 100 m² of living space in the ground-floor apartment
• Private entrance and canal views
• Entirely new construction on freehold land
• Energy label A+++
• Ultra-slim aluminium window frames in RAL 6006 with triple glazing
• Air-source heat pump with underfloor heating and cooling
• Mechanical ventilation and solar panels
• Shell delivery – finish according to your own design
• Basement with ceiling height of approx. 2.68 m
• Ground floor with ceiling height of approx. 2.90 m
• Clever outdoor solution: fold-down bench on side façade
• 2 hours of professional interior design advice via Co van der Horst
• Choice of notary for the buyer (within the Amsterdam region and using the Ring Amsterdam model)
• This information has been compiled with the utmost care. However, no liability is accepted for any incompleteness, inaccuracy, or otherwise, nor for the consequences thereof. All stated dimensions and surfaces are indicative. The NVM terms and conditions apply.

Features

Solar panels
Transfer of ownership
Asking Price
€ 985.000 k.k.
Status
beschikbaar
Acceptance
in overleg
Construction
Kind of house
Dubbel benedenhuis
Building type
appartement
Construction period
2025
Energy rating
A+++
Roof type
samengesteld dak
Bedrooms
2
Bathrooms
1
Surface Areas And Volume
Living Area
100 m2
Other indoor space
0 m2
Volume in cubic meters
420 m3
Plot Size
80 m2
Facilities
Mechanische ventilatie
Frans balkon
Zonnepanelen
Aan water
Aan rustige weg
In centrum
Vrij uitzicht
Aan vaarwater
 

Videos

Lunshof Makelaardij Amsterdam

Keizersgracht 555
1017 DR Amsterdam

info@lunshof.nl
+31 575 55 05

www.lunshof.nl

Information / Viewing request

Stefano B. Djoemena profile image
Stefano B. Djoemena
Beëdigd register makelaar o.z.