Our office is affiliated with Baerz & Co Luxury Homes, a joint-venture of selected, privately owned boutique luxury home offices in 20 countries around the Mediterranean, the Alps, Mexico and Dubai. For more information about these properties, please contact our office.

KATWIJK
Mallebrugge 1 - 2223 BV
Netherlands

Frits Wilbrink profile image
Frits Wilbrink
Real estate agent
€1,850,000 k.k.
Living Area
275m2
Plot Size
710m2
Bedrooms
6

Description

Unique in Katwijk.

Quietly located, sustainable villa on waterfront with private dock.
Discover this wonderfully comfortable villa thoroughly remodeled in 2017 where luxury and comfort come together in a beautiful waterfront location. With its own dock, a generous garage and high-quality finishes, this is a sunny family home for those who want to combine space, tranquility and privacy.
• Large bright living room
• Spacious kitchen
• Basement/ hobby room
• 6 spacious bedrooms + 2 bathrooms
• Private dock
• Energy label A+

Built in 2005/2017, living area 275m2, contents 1.082m3, plot 710m2

We take you ...
Located in a quiet neighborhood with plenty of parking.
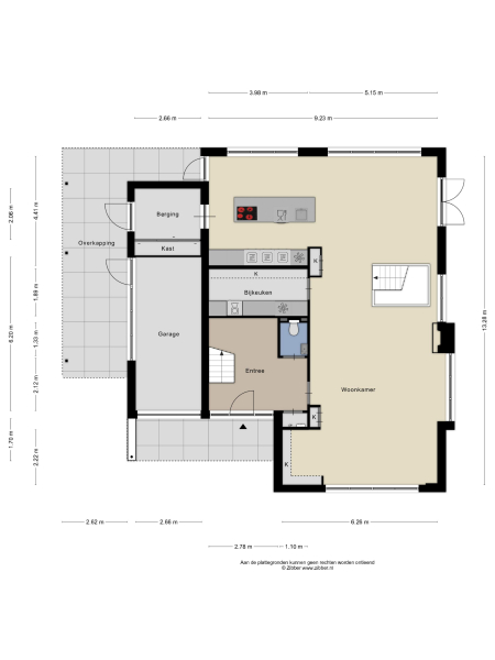
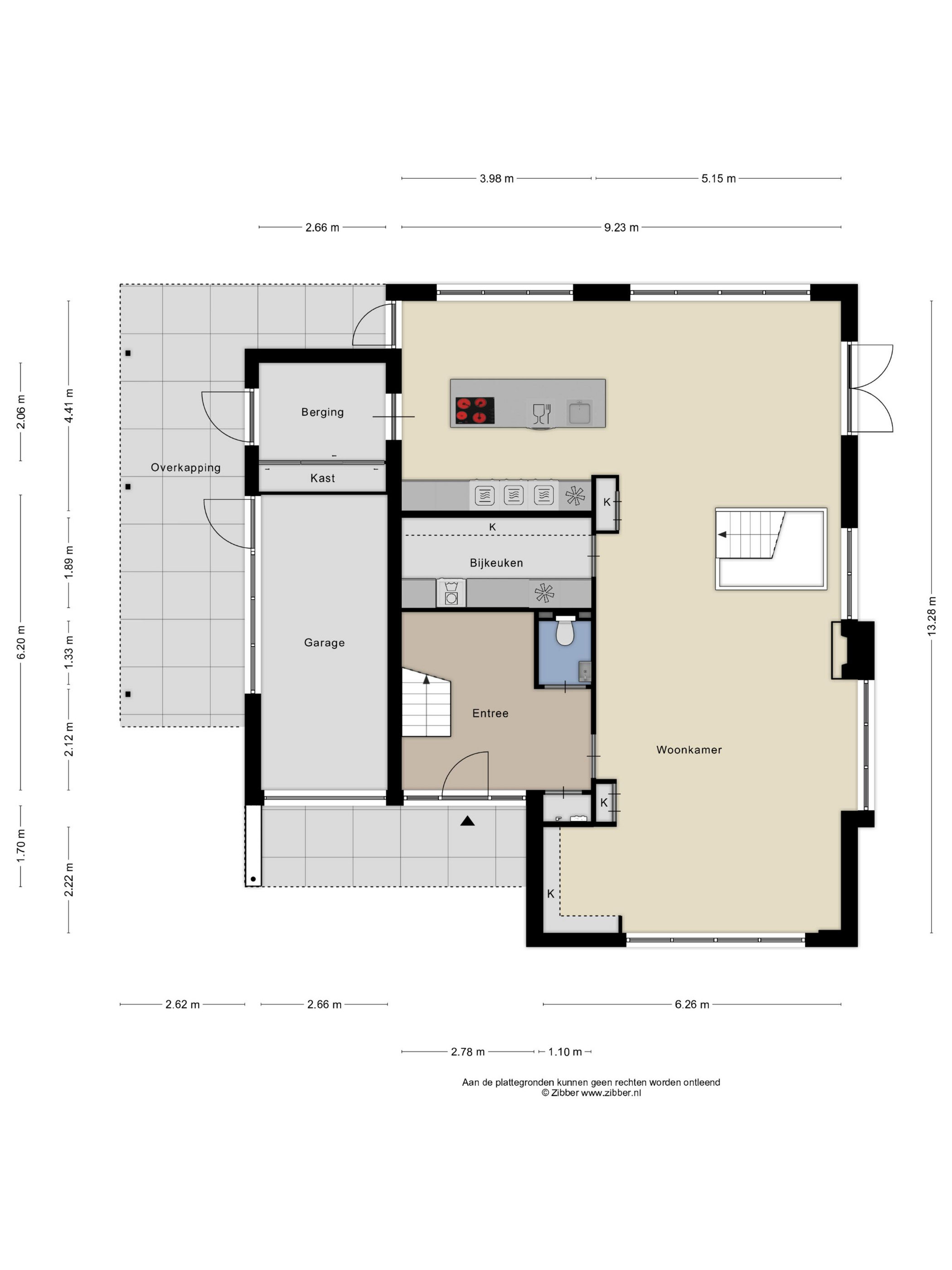
Upon entering there is a generous bright entrance with beautiful staircase and toilet room. Through the steel door we enter the generous, very bright living room with work corner and French doors to the beautiful garden. At the rear of the house is a large modern kitchen with cooking/sink island and breakfast bar; plenty of space for cozy dinners with friends and family. Again, large windows provide an abundance of light. A utility room is of course not missing; this is also where the washing equipment is located.
The living room has oak flooring with white wash finish and the kitchen has a light tiled floor.
In 2017, a basement/cellar was realized where there is a multi-purpose room accessible from the living room.
The whole house, basement and garage have underfloor heating that can also cool.
Through the beautiful staircase we go to the second floor.

2nd floor
From the landing, the 3 bedrooms are accessible. The master bedroom has access to the luxurious bathroom and the 2 back bedrooms have access to the large balcony with beautiful views of the water.

3rd floor
On the attic floor are another 3 bedrooms and a 2nd luxury bathroom.
All rooms have a dormer window and closet space behind the knee partitions. A dormer window in the stairwell provides extra light on the landing.
In the ridge of the house is a storage attic, ideal for storing things out of sight.

Garage
Next to the house is a carport and a garage where there is room for 1 car. Behind the garage is a storage room, which is also accessible from the kitchen.
At the front of the house is parking for several cars.

Garden
The beautifully landscaped garden has several terraces, grass, planters, flower borders, hedges and an outdoor shower. The spacious terrace facing the living room (Z) has a large sunshade. The garden is surrounded by a beautiful green hedge and can be closed with an electrically operated ornamental fence, which not only provides privacy but also extra security.
From the private dock you can take the boat via the Oegstgeester Canal to the Kagerplassen or the attractive canals of Leiden.
The dock can accommodate a sloop of 2.42m x 7.60m. Under the decking terrace is a dinghy landing stage. The maximum clearance in the district is about 1.30m

Location
In a spacious cozy residential area, quiet but with everyday living facilities within easy reach, such as schools, stores and sports clubs but also the Katwijk beach with its lively promenade is within cycling distance.
Located near the exit road to the N206 and within cycling distance of Leiden Central, cities like Amsterdam/Schiphol, Leiden and Haarlem are also within easy reach.

Sustainability
• Geothermal heat pump
• Underfloor heating in the house, basement and garage.
• Fully insulated
• Energy label A +

Details
• In 2017 thoroughly renovated and built
• Geothermal heat pump
• Underfloor heating, also floor cooling
• New staircase
• Kitchen diner built
• basement / basement realized
• Marina made
• Very bright house
• Spacious bedrooms
• Beautifully landscaped garden with outdoor shower
• Public parking and on site
• Lots of privacy
• Close to amenities and roads.

This villa offers everything you are looking for: space, comfort and the unique opportunity to go directly from your garden onto the water. Interested?

Real estate agent Frits Wilbrink is happy to show you around.
Call our office for an appointment!

Features

Alarm system
Air conditioning
Transfer of ownership
Asking Price
€ 1.850.000 k.k.
Status
beschikbaar
Acceptance
in overleg
Construction
Kind of house
Villa
Building type
vrijstaande woning
Construction period
2005
Energy rating
A+
Roof type
samengesteld dak
Bedrooms
6
Bathrooms
2
Surface Areas And Volume
Living Area
275 m2
Other indoor space
17 m2
Exterior space attached to the buildinge
68 m2
Volume in cubic meters
1082 m3
Plot Size
710 m2
Facilities
Mechanische ventilatie
Alarminstallatie
Tv kabel
Airconditioning
Rookkanaal
Dakraam
Glasvezel kabel
Natuurlijke ventilatie
Aan water
Aan rustige weg
In centrum
In woonwijk
Beschutte ligging
Aan vaarwater
Baerz & Co Property Brochure

Brochure

Videos

Wilbrink & v.d. Vlugt Makelaars

Heereweg 231
2161 BG Lisse

info@wilbrinkvandervlugt.nl
+31 252 41 90 49

www.onsaanbod.nl

Information / Viewing request

Frits Wilbrink profile image
Frits Wilbrink
Real estate agent

Buying a Luxury Property in Katwijk

Katwijk brings together a close-knit coastal community, refined amenities, and sophisticated property services, appealing to those who value privacy and vibrant seaside living within an internationally connected environment.