Our office is affiliated with Baerz & Co Luxury Homes, a joint-venture of selected, privately owned boutique luxury home offices in 20 countries around the Mediterranean, the Alps, Mexico and Dubai. For more information about these properties, please contact our office.

KRIMPEN AAN DEN IJSSEL
Burgemeester Lepelaarssingel 11 - 2925 ES
Netherlands

Xandra Bek profile image
Xandra Bek
Register makelaar - taxateur
€1,195,000 k.k.
Living Area
278m2
Plot Size
1840m2
Bedrooms
6

Description

SPACIOUS LIVING IN A UNIQUE WATERSIDE LOCATION

Tucked away along a quiet, tree-lined canal and directly bordering the water, this exceptional detached home sits on an unusually large plot of approximately 850 m². A true haven where space, privacy, and tranquility come together—an impressive location in itself. Built in 1976, this solidly constructed family home offers approx. 278 m² of living space, an integrated garage, carport, and ample private parking. The generous backyard borders the water and offers open views, giving the feeling of living in a nature reserve—all while having everyday amenities just around the corner.

This property is ideal for buyers seeking more space and future-proof living: a ground-floor bedroom is among the possibilities. The house also presents a great opportunity for modernization, allowing you to style and update it to your own taste.

LAYOUT DESIGNED FOR COMFORT AND SPACE

You enter the house through a covered entrance into a spacious hallway with direct access to the living room.
The living area is bright and expansive, featuring large windows on three sides that provide a near-panoramic view of the surrounding greenery. A sliding door at the rear opens onto the terrace and garden, where you can relax in peace while enjoying the sun and the water view. The dining area is adjacent to the terrace, offering a seamless flow between indoor and outdoor living.

Also on the ground floor: a kitchen equipped with all essential built-in appliances, a guest toilet, access to the garage, and a spacious additional room ideal for use as a bedroom, office, or hobby space—making single-level living a real option.

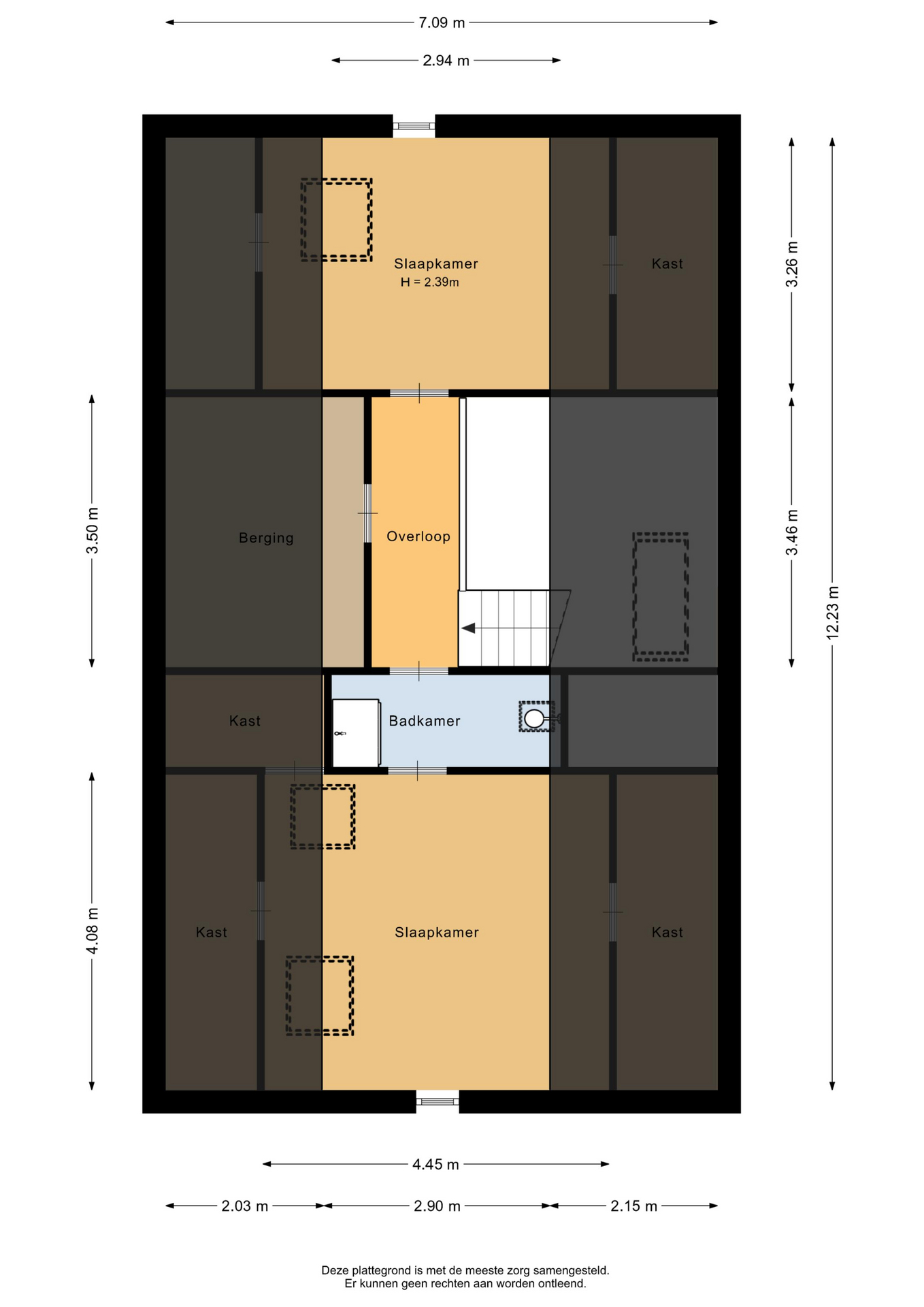
The first floor comprises four well-proportioned bedrooms and additional storage space. The bathroom is functionally designed and includes a bathtub, washbasin, and second toilet.

On the second floor, you'll find two more bedrooms and an additional bathroom with a washbasin and walk-in shower. This floor also offers extra storage.

PRIVATE, MATURE GARDEN WITH NATURE ALL AROUND

The garden surrounding the house is lush and mature, offering plenty of space for relaxing, playing, or gardening. The back garden borders the water and includes a sun terrace. You’ll enjoy complete privacy here, with the feeling of countryside living. The driveway accommodates multiple cars, and the garage is accessible from inside the house. The carport adds further comfort and protection.

READY FOR MODERNIZATION WITH A STRONG FOUNDATION

This home has been well maintained over the years and offers a strong foundation for renovation. Built with concrete floors, wooden window frames with insulated glazing, and partial underfloor heating (living room, kitchen, hallway, and garage). It features a well-functioning Nefit Topline boiler (2012) with recent maintenance. In 2018, mechanical ventilation was added to the bathroom, and the exterior woodwork was professionally painted in 2017. A perfect opportunity for buyers looking to personalize their dream home.

GREEN, PEACEFUL YET CLOSE TO EVERYTHING

Krimpen aan den IJssel is known for its green, water-rich, and spacious environment. Burgemeester Lepelaarssingel is a quiet, generously laid-out street, predominantly lined with detached homes. The location is ideal—close to the Crimpenhof shopping center, schools, sports clubs, and public transport. Main roads to Rotterdam and the Krimpenerwaard are also easily accessible.

For nature lovers, the area offers countless walking and cycling routes along the IJssel River, through the polder landscape, or in the nearby Hitland nature area. The combination of central convenience and natural serenity makes this a rare opportunity for those seeking spacious, comfortable living with all amenities close at hand.

KEY FEATURES

Location: Quiet canal-side setting, directly on the water

Garden orientation: West-facing

Living area: Approx. 278 m²

Plot size: Approx. 850 m²

Year built: 1976

Number of rooms: 6

Number of bedrooms: 6 (plus one possible on the ground floor)

Energy label: D

DISCLAIMER - NEN2580 MEASUREMENT GUIDELINE

The measurement instruction is based on the NEN2580 standard and aims to provide a uniform method for calculating usable floor area. Measurement differences may still occur due to interpretation, rounding, or measurement limitations.

PURCHASE AGREEMENT VALID ONLY AFTER SIGNING

A verbal agreement between a private seller and private buyer is not legally binding. In other words: there is no valid sale until both parties have signed the purchase agreement. This is in accordance with Article 7:2 of the Dutch Civil Code. An email confirmation or a draft version of the agreement does not qualify as a signed purchase contract.

This information has been compiled with due care. However, we accept no liability for any inaccuracies, omissions, or the consequences thereof. All dimensions and surface areas are indicative.

Features

Transfer of ownership
Asking Price
€ 1.195.000 k.k.
Status
beschikbaar
Acceptance
in overleg
Construction
Kind of house
Villa
Building type
vrijstaande woning
Construction period
1979
Energy rating
D
Roof type
samengesteld dak
Bedrooms
6
Bathrooms
2
Surface Areas And Volume
Living Area
278 m2
Other indoor space
27 m2
Exterior space attached to the buildinge
43 m2
External storage space
7 m2
Volume in cubic meters
1054 m3
Plot Size
1840 m2
Facilities
Mechanische ventilatie
Buitenzonwering
Schuifpui
Dakraam
Natuurlijke ventilatie
Aan water
Aan rustige weg
In woonwijk
Beschutte ligging
Baerz & Co Property Brochure

Brochure

Videos

Van Herk Makelaars Excellent

Oudehoofdplein 4
3011 TM Rotterdam

xbek@vanherk.nl
+31 102581855

www.vanherk.nl/excellent/

Information / Viewing request

Xandra Bek profile image
Xandra Bek
Register makelaar - taxateur

Buying a Luxury Property in Krimpen Aan Den Ijssel

Krimpen Aan Den Ijssel presents a discreet riverside community with acclaimed amenities, elegant residences, and a vibrant social fabric. The locale attracts global investors and families seeking refined living, supported by trusted advisors and sophisticated services.